- 34 Visualisering Revit og Enscape November 2024
- 33 Masse tyngde søjle drager terrassering Model i fyrretræ 1:50 Februar 2024
- 32 Figur Hoved Ler H:135mm December 2023
- 31 Flader By Hieraki Model 1:200 Oktober 2023
- 30 Pavillionstruktur i tømmer og stål Model 1:50 Oktober 2022
- 29 Urnes besøgscenter Åben international konkurrence November 2021
- 28 Sommerhus i Kulhuse Januar 2021
- 27 Visualisering Revit og Enscape December 2020
- 26 Visualisering Revit December 2020
- 25 Forplads for Åmarken station i teglskiver Skitseforslag Oktober 2020
- 24 Hvidovre Strandvej 142 Tilbygning til enfamiliebolig Skitseforslag Maj 2020
- 23 Tømmerkonstruktion Skummodel 1:50 April 2020
- 22 Boliger med erhvervslejemål og parkering Marts 2020
- 21 Parkeringshus med boliger og butikker Marts 2020
- 20 Relief Støbning i beton November 2019
- 19 Rækkehusforhave med udhus og overdækning November 2019
- 18 Ny kirke i Sydhavnen Åben projektkonkurrence August 2016
- 17 Newaarch Konkurrenceforslag April 2016
- 16 Ressourcecenter i Maglemølle Kraftcentral for Lendager Arkitekter August 2015
- 15 DogmeRUM2015 Innosite Stage your mind Konkurrence Maj 2015
- 14 Langstrupvej Tilbygning Februar 2016
- 13 Hvidovre Bymidte Forslag til ny helhedsplan April 2015
- 12 Bamiyan Cultural Center UNESCO konkurrence Februar 2015
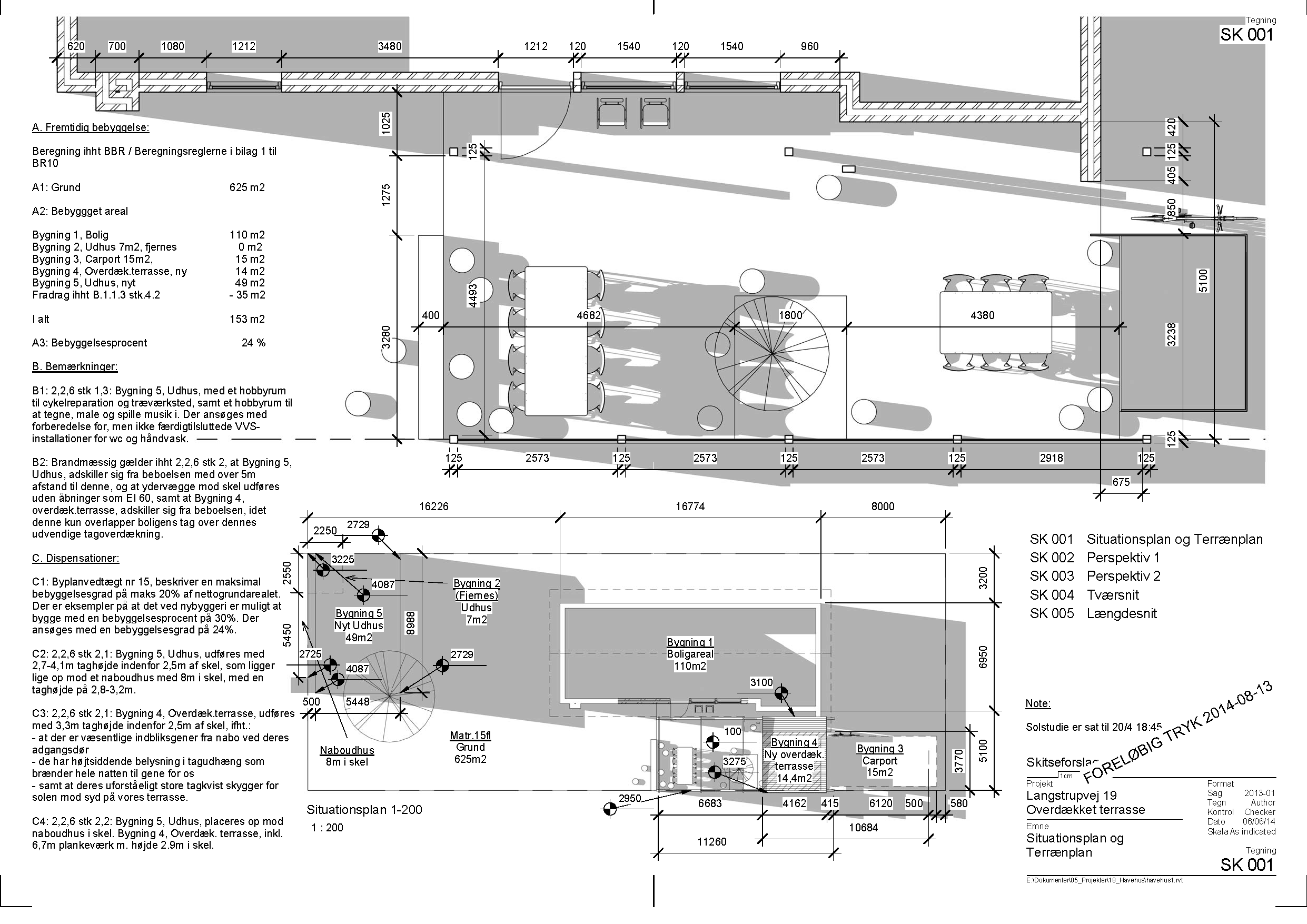
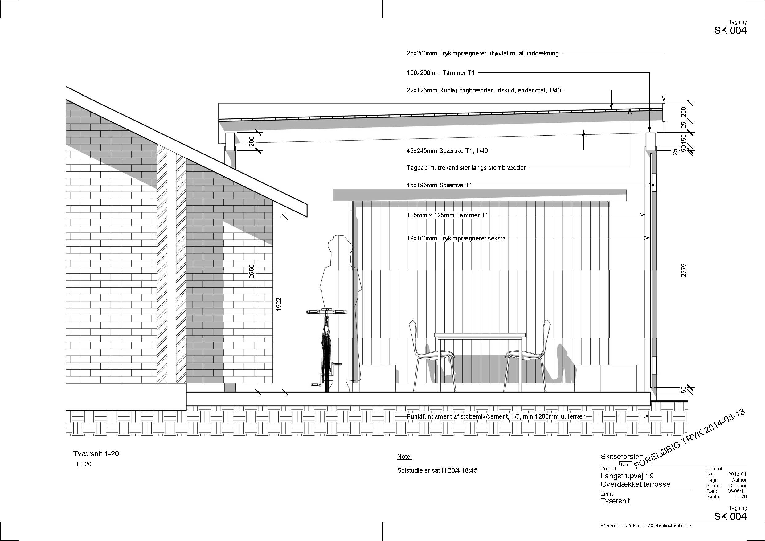
- 11 Langstrupvej Pergola og Havehus Oktober 2014
- 10 Roskildevej Om- og tilbygning af villa Januar 2014
- 09 Langstrupvej Havemur November 2013
- 08 Carlsberg Bolig, Erhverv og P-Kælder, for Lejerbo hos White August 2013
- 07 Giesegårdsvej Ny udnyttet tagetage Marts 2013
- 06 Rosengårds Allé Om-, og tilbygning August 2008
- 05 FBH arkitekter Grafisk identitet Marts 2006
- 04 Ny Nørrebro Park Åben idékonkurrence August 2004
- 03 En passage i byens flader Afgangsprojekt KADK Juni 2004
- 02 Udbygning af Bornholms Museum Åben projektkonkurrence Juni 2003
- 01 Flerfamiliebolig ved Damhusengen Studieopgave KADK 2000
